PROPERTY DETAILS 売買物件詳細

  • MOIVE

西小学校区♪北区”今7丁目”の新築住宅

新築

No.9953

3,280万円

~北区”今7丁目”新築戸建てのご案内です~

場所は岡電バス『今7丁目』停まで徒歩6分。
学区は依然人気の高い、西小学校・御南中学校区で、周辺には数々の商業施設が揃う利便性に富んだエリアになっております♪
また市内中心地にも近く、駅はJR大元駅、JR北長瀬駅、、
車両移動は岡山西バイパスや2号線バイパスなど、交通の利便性も良好です。

建物は令和7年2月に建ったばかりの新築住宅(^_-)☆彡
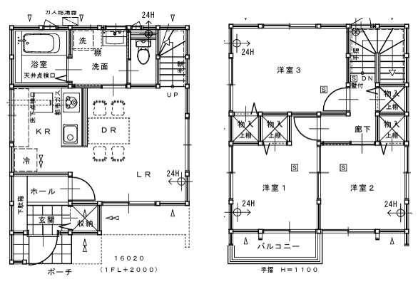
南向き道路で陽当りも良く、間取りはコンパクトな3LDKとなっております。

とにもかくにも人気学区のとても希少な物件です!!
ぜひお問合せ下さいませ(^_-)-☆

内見希望、資料請求等随時受け付けておりますのでお気軽にお声かけ下さいね☆
皆様からのお問合せをスタッフ一同、心よりお待ち致しております♪

INFORMATION 物件情報

  • 所在地 岡山市北区今7丁目12-6
  • 販売価格 3,280万円
  • 土地面積 64.45㎡[ 19.49坪 ]
  • 建物面積 67.44㎡[ 20.4坪 ]
  • 構造 木造2階建
  • 築年数 新築
  • 間取り 3LDK
  • 駐車場 1台可
  • 学区 西小学校・御南中学校
  • 道路 南側4m[ 公道 ]
  • 備考 ◇ライフライン
    ・公営水道、公共下水、都市ガス、中国電力

    ◇交通:岡電バス『今7丁目』停:徒歩6分

平面図/区画図

この物件のお問い合わせ・
資料請求はこちら
お電話でのお問い合わせはこちら TEL.086-250-6145
NULL