PROPERTY DETAILS 売買物件詳細

  • MOIVE
  • リフォーム済

すぐ住めますよ♪北区”撫川”の中古住宅

中古住宅

No.9835

2,169万円

~フルリフォーム済みですぐ住める♪北区「撫川」の中古住宅~

岡山市北区撫川エリアにて、リフォーム済みの中古戸建のご紹介です。
両備バス「下撫川」停まで徒歩4分、庭瀬駅も最寄り駅として利用可能で、岡山市街にも倉敷市街にもアクセスしやすい立地です。
また、人気の吉備小学校・吉備中学校区内にあり、落ち着いた雰囲気の住宅街ながら子育て世帯にも安心の環境が整っています♪

敷地面積はゆとりの約60坪。
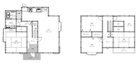
建物は4LDKの間取りで、新しく生まれ変わった室内は清潔感があり、引渡し後すぐに快適な生活をスタートできます。
南側にはお庭があり、陽当たりがとても良好。洗濯物干しやお子様の遊び場、ガーデニングなど、多彩な用途で活用できる心地よい空間です。
室内も明るく風通しが良い住まいとなっています。

資料請求や内覧は随時受け付けております。少しでもご興味をお持ちいただけましたら、ぜひお気軽にお問い合わせください!
ハウスラボのスタッフ一同、皆さまからのご連絡を心よりお待ちしております。

INFORMATION 物件情報

  • 所在地 岡山市北区撫川1041-18
  • 販売価格 2,169万円
  • 土地面積 195.24㎡[ 59.06坪 ]
  • 建物面積 131.00㎡[ 39.62坪 ]
  • 構造 木造2階建
  • 築年数 昭和61年10月 [ 築38年 ]
  • 間取り 4LDK
  • 駐車場 2台可
  • 学区 吉備小学校・吉備中学校
  • 道路 南側6.0m公道/東側4.0m公道
  • 備考 ◇ライフライン:プロパンガス・浄化槽
    ◇前面道路:持ち分有り
    ◇現況:空き家

平面図/区画図

この物件のお問い合わせ・
資料請求はこちら
お電話でのお問い合わせはこちら TEL.086-250-6145
NULL